| 产品标题:9132950,topair双联阀,台湾topair,topair气缸,topair油压缸 产品ID:VIB20150724155233734 品 牌:TOPAIR 所在地:中国 价 格:面议 (大量采购价格面议) 库存状态:货期待查 更新日期:2025-11-14 19:22:43 咨询电话:(+86)021-51699285 咨询Q Q: 2695337323 |
內徑直徑 1.3
線圈切換動作
本電磁閥為常閉型
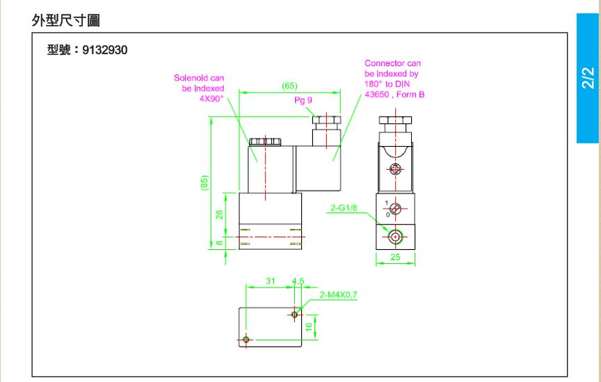
配管口籼徑 G1/4, G1/8
操作壓力:最大 10 bar
特 性
˙ 體積小
˙ 線圈可依電壓自由選配
˙ 可搭配真空器使用
˙ 具有手動開關
˙ 具有鉗入式手動開關 ( 選配 )
說 明 ( 標準型 )
˙ 本電磁閥可用於經過濾及給油或不給油之空氣下動作
˙ 進出氣方向:固定
˙ 操作溫度範圍:-10 ℃ ~ +60 ℃
˙ 本體材質:鋁合金
˙ 止漏橡膠材質:NBR

測試於 6 bar 時 VDI 3290 潤滑油及 DC 圈線
‧ 選配:嵌入式手動開關
‧ 鎖緊線圈之力量範圍 0.2 到最大 0.5 Nm




